house-Kamiosaki
武蔵野台地の先端、低地の谷が複雑に入り組んだ舌状台地の際に計画した住宅である。
敷地は谷の最奥部に位置し、土留めの擁壁や鬱蒼とした植栽を見上げる「谷底」の静謐さと、眼下の風景を見下ろす「丘」の開放感が同居し、高低差による地形のダイナミズムを肌で感じる環境にある。 我々は敷地が持つこの二面性を、「谷」から「丘」へと至るシークエンスとして再構築することを試みた。
間口が狭く奥行の深い敷地に対し、接道面には高さを四段階に変えた植栽ポットを、層を成すようにずらしながら配置した。常緑樹を主体とした植栽は、街路に対する柔らかな緑のファサードを形成すると同時に、室内へのプライバシーを守るバッファとして機能する。 樹々を見上げる植栽ポットの隙間を「谷」に見立てて雁行するアプローチ動線とし、あえて天井高さを抑えたほの暗い玄関へと導く。上部から差し込む光に誘われて階段を上がると、植栽ポットのレベル差が生み出す立体的な緑の重なりを望む、「丘」の上のような明るく開放的な空間が広がる。
建物は、半地下階・地上1階を壁式鉄筋コンクリート造、その上部を木造としたスキップフロア形式の混構造である。地上階では、南北への視線の抜けと吹き抜けのある大空間を成立させるため、短手方向の水平力をRC立ち上がりによる片持ち壁と木造門型ラーメン架構によって負担する構成としている。屋根のずれに呼応して段状に立ち上がるRC壁は、大開口を実現するための構造的な要請であると同時に、擁壁のような量感をもって、敷地周囲に広がる北高南低の地形を可視化する存在でもある。
ラーメン架構を構成する部材はオウシュウアカマツ集成材を用い、柱(105×240mm)に対し、梁(2-45×180mm/300mm)をダブルで挟み込む構成としている。接合部には6mm厚のL字型鋼製プレートを設け、せん断ピンとボルトによる接合でモーメント抵抗を可能とした。
上部の木造部は、壁からはみ出すメインフレームの柱脚を面取りし、上階床との間にスリット状の開口を設けることで、視覚的にRC壁から切り離している。さらに、横架材には45㎜幅の小径材を等ピッチで反復させ、堅牢な基壇とは対照的な、軽やかで均質性のある架構表現とした。
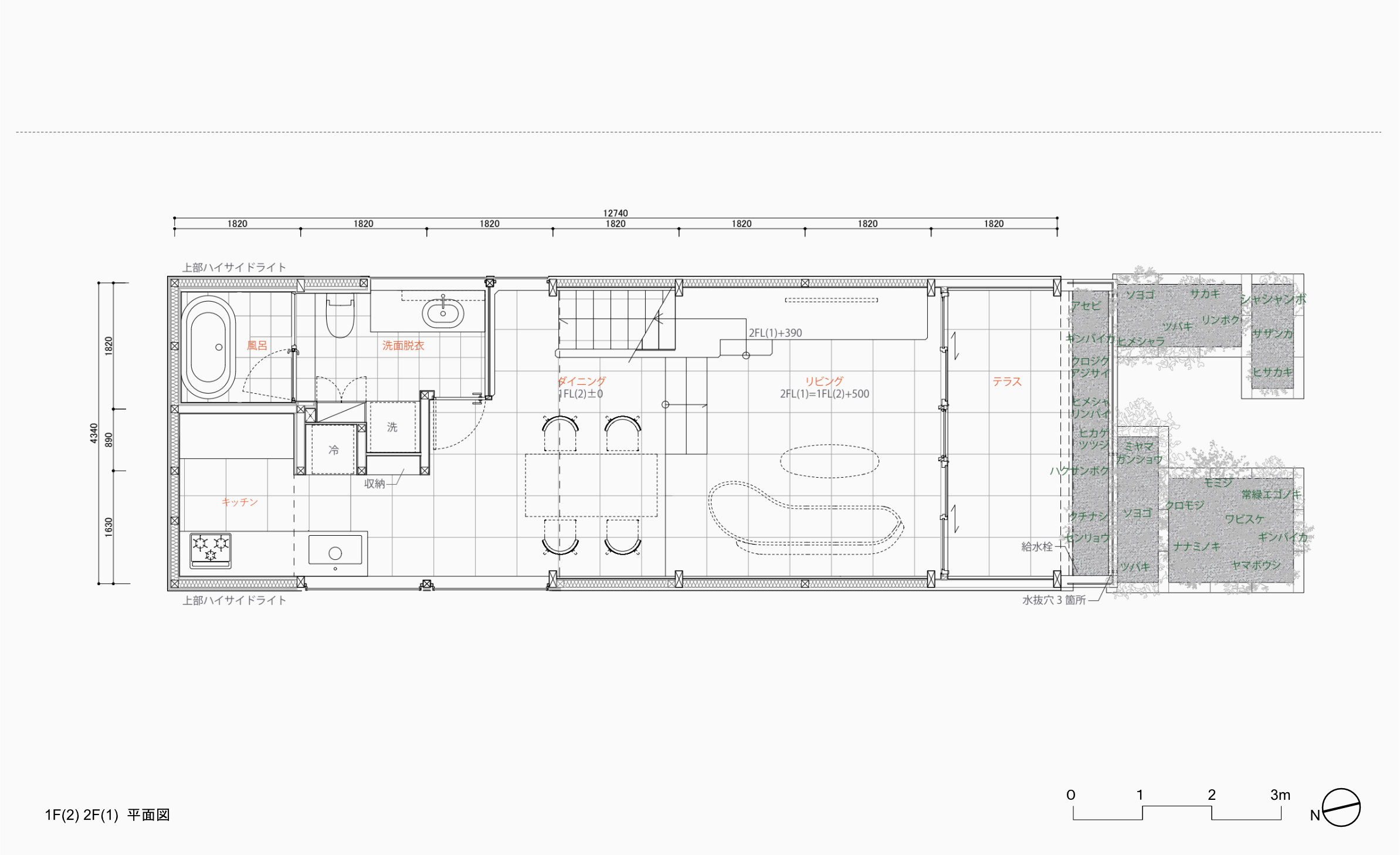
機械空調への過度な依存を避けるため、開口部の配置は設計初期より空調計画と一体的に検討した。南庭の常緑樹の蒸散効果で冷やされた外気を、テラスの掃き出し窓や高窓から取り込み、北側のキッチンおよび最上部の書斎窓へと抜くことで、建物全体を巡る立体的な換気経路を形成している。冬季においては、LDKの床暖房により居住域を温めつつ、吹抜け上部に滞留する暖気を循環ダクトで半地下の寝室へ送り、熱を有効利用する計画とした。
四段に架かる屋根とハイサイドライトの断面寸法は、夏季の直射日光を遮りつつ、冬季の陽光のみを室内深くまで導くよう計画されている。通り抜ける風や刻々と変化する光の濃淡が室内に満ち、生活の中で四季の機微を鮮やかに感じ取れる環境が整えられている。
植栽計画においては、日本文学に造詣が深い建主のために、在来種を中心とした多様な常緑樹を用い、茶庭をイメージした落ち着きのある庭とした。テラス先端の低木植栽帯には潅水設備を用意し、その余剰水を水抜穴から下段のポットへと落とすことで、高さの変化を利用した水の流れを作っている。植栽ポットの筐体には建築用のコンクリートブロックを採用し、基礎を含めてロの字型に組積することで、水の浸透性と根の伸展を妨げない構造としている。コンクリートブロックの擁壁や塀が多く存在する既存の風景に馴染む素材を用いながら、その段状の重なりによって、独自の表情を作り出した。
「谷」の静けさから「丘」の開放性へと至る身体的な移動体験は、敷地が本来持っていた地形の記憶をなぞる行為でもある。周囲の地形と敷地の特性を精緻に読み解いた空間の流れを通じて、土地に根差した感覚を持てる住まいを目指した。
Site : 東京都
Year : 2025
Total floor area : 120㎡
Structure : RC+W
Contractor : 栄伸建設
Structural design : 坂田涼太郎構造設計事務所
Facility design : Y.M.O合同会社
Lighting design : DAISUKI LIGHT
Planting design : 村田円芸
Photo: Takumi Homma
Award: miratap design award 2025 miratap Prize






































